Ricerca rapida
Tipologia
Categoria
Città
Zona
Cerca
Codice
Prezzo (da - a)
-
Mq (da - a)
-
Ordine

VEN1376A - Villa singola

Casa singola, Porzione Villa, Porzione di Casa, 4 o più locali

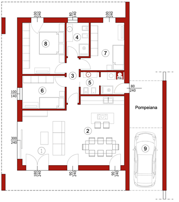
A soli 100 metri dal centro di Brugine proponiamo casa singola sviluppata interamente al piano terra. L'immobile si contraddistingue dalle linee moderne e dalle eleganti finiture. L'immobile si compone di ingresso soggiorno con angolo cottura, disimpegno, due bagni e tre camere da letto di cui due sono matrimoniali. Collegato alla casa è presente un ampio garage con pergolato annesso. L'intera casa è circondata da un ampio giardino di proprietà.
L'immobile sarà ultimato in classe energetica A4 quindi con i massimi criteri per il risparmio energetico, verrà data la possibilità di scelta delle finiture interne e di eventuali modifiche. Disporrà di riscaldamento a pavimento mediante pompa di calore, impianto fotovoltaico da 4,5 kw, serramenti in pvc, predisposizione impianto di condizionamento e impianto di allarme.

N.B.: per motivi di privacy l'indirizzo e il puntatore nella mappa sono puramente indicativi e non corrispondono esattamente all'ubicazione dell'immobile.

Visita il nostro sito:
http://www.l-intesa.it
e seguici su Facebook
https://www.facebook.com/lintesagenzia/

L' Intesa Servizi Immobiliari tratta le seguenti zone: Piove di Sacco, Brugine, Polverara, Arzergrande, Legnaro, Bovolenta, Pontelongo, Sant'Angelo di Piove di Sacco, Campolongo Maggiore, Correzzola, Saonara e Codevigo.
Prezzo
310.000 EUR
Mq
115
Classe
A4
Locali
4
Camere
3
Bagni
2
Box
1
Mq Box
15
Posti auto
1
Mq Giardino
800
Stato Immobile
Prossima Realizzazione
Grado
Signorile
Posizione
Centro
Panorama
Vista Aperta
Orientamento
Nord Ovest Sud Est
Lati Liberi
4
Giardino
Privato
Arredi
Non Arredato
Tipo Soggiorno
Doppio
Tipo Cucina
Abitabile
Riscaldamento
Autonomo
Tipo Riscaldam.
Pompa di Calore
Tipo Impianto
Pavimento
Fonte Energetica
Fotovoltaico
Acqua Calda
Autonoma
Raffrescamento
Split
Infissi
PVC Doppio Vetro
Serramenti
Nuovo
Persiana
Persiana PVC
Pavim. Giorno
Gres Porcellanato
Pavim. Notte
Gres Porcellanato
Pavim. Cucina
Gres Porcellanato
Pavim. Bagno
Gres Porcellanato
Accesso Disabili
Nessuna Barriera
Accesso interno disabili
Pieno accesso
Isolamento
Presente
Isolamento termico
Cappotto esterno
Isolamento acustico
Isolamento completo
Spessore cappotto (cm)
14
VMC
Si
Accessori
Antifurto, Aria Condizionata, Cancello Elettrico, Doppi Vetri, Impianto Fotovoltaico, Impianto Satellitare, Lavanderia, Pannelli Solari, Passaggio Automobilistico, Passaggio Pedonale, Porta Blindata, Rete Dati, Tapparelle Elettriche, Video Citofono
MAPPA
via Mantegna , Brugine (PD)
Cookie preference