Ricerca rapida
Tipologia
Categoria
Città
Zona
Cerca
Codice
Prezzo (da - a)
-
Mq (da - a)
-
Ordine

VEN1329 - PORZIONE DI QUADRIFAMILIARE IN COSTRUZIONE

Porzione Villa, 4 o più locali, Villa Bifamiliare, Porzione di Casa

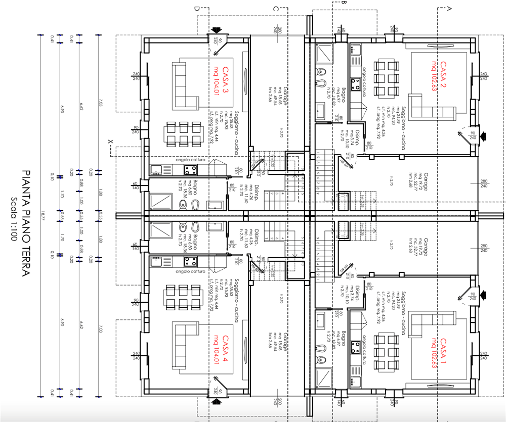
In recente quartiere residenziale proponiamo porzione di quadrifamiliare in corso di costruzione.
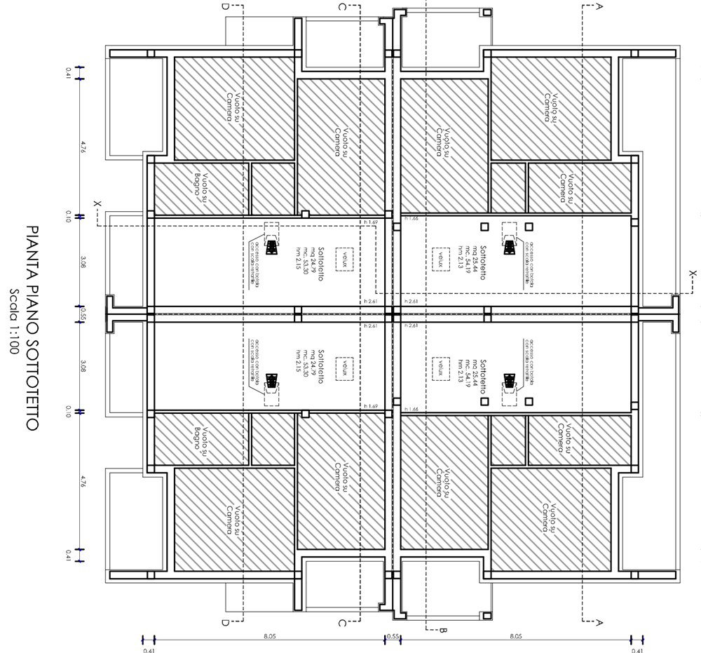
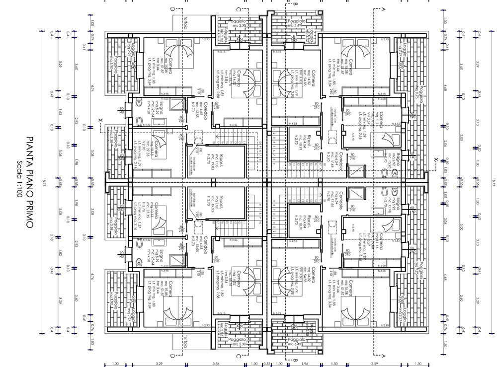
L'immobile si sviluppa su due livelli e si caratterizza dalle linee moderne e dagli ampi spazi interni.
Al piano terra troviamo una luminosa zona giorno con un ampia vetrata, disimpegno, un bagno ed il garage con angolo lavanderia, mentre al piano primo troviamo tre camere, di cui due matrimoniali ed una doppia, un bagno, un ripostiglio e due comodi terrazzi.
La casa dispone di ingresso completamente indipendente e di un piccolo scoperto di proprietà.
Verrà data la possibilità all'acquirente di personalizzare tutte le finiture interne. L'immobile verrà costruito con i più elevati standard costruttivi e con i migliori prodotti disponibili sul mercato.
Disporrà di impianto fotovoltaico, riscaldamento in pompa di calore, impianto VMC, clima, predisposizione di allarme e tanto altro.
Ulteriori info in agenzia.

Visita il nostro sito:
http://www.l-intesa.it
e seguici su Facebook
https://www.facebook.com/lintesagenzia/

N.B.: per motivi di privacy l'indirizzo e il puntatore nella mappa sono puramente indicativi e non corrispondono esattamente all'ubicazione dell'immobile.

L' Intesa Servizi Immobiliari tratta le seguenti zone: Piove di Sacco, Brugine, Polverara, Arzergrande, Legnaro, Bovolenta, Pontelongo, Sant'Angelo di Piove di Sacco, Campolongo Maggiore, Correzzola, Saonara e Codevigo.
Prezzo
270.000 EUR
Mq
160
Classe
A4 (0,2 [kWh/m²a])
Locali
5
Camere
3
Bagni
2
Box
1
Mq Box
18,5
Posti auto
1
Mq Giardino
200
Stato Immobile
In Costruzione
Grado
Signorile
Posizione
Centro
Panorama
Vista Aperta
Piano
Piano Terra
Orientamento
Nord Ovest Sud Est
Lati Liberi
2
Giardino
Privato
Arredi
Non Arredato
Tipo Soggiorno
Soggiorno
Tipo Cucina
Angolo Cottura
Riscaldamento
Autonomo
Tipo Riscaldam.
Pompa di Calore
Tipo Impianto
Pavimento
Fonte Energetica
Elettrico
Acqua Calda
Autonoma
Raffrescamento
Split
Infissi
PVC Doppio Vetro
Serramenti
Nuovo
Persiana
Tapparella PVC
Pavim. Giorno
Gres Porcellanato
Pavim. Notte
Gres Porcellanato
Pavim. Cucina
Gres Porcellanato
Pavim. Bagno
Gres Porcellanato
Accesso Disabili
Nessuna Barriera
Accesso interno disabili
Parziale
Appartamenti
Uno
Isolamento
Presente
Isolamento termico
Cappotto esterno
VMC
Si
Accessori
Antifurto, Aria Condizionata, Cancello Elettrico, Doppi Vetri, Impianto Fotovoltaico, Impianto Satellitare, Lavanderia, Passaggio Automobilistico, Passaggio Pedonale, Porta Blindata, Rete Dati, Ripostiglio, Tapparelle Elettriche, Video Citofono, Zanzariere
MAPPA
via gozzi 1, Pontelongo (PD)
Cookie preference